Tyler Police Department Regional Training Facility

Share Tyler Police Department Regional Training Facility on Facebook Share Tyler Police Department Regional Training Facility on Twitter Share Tyler Police Department Regional Training Facility on Linkedin Email Tyler Police Department Regional Training Facility link

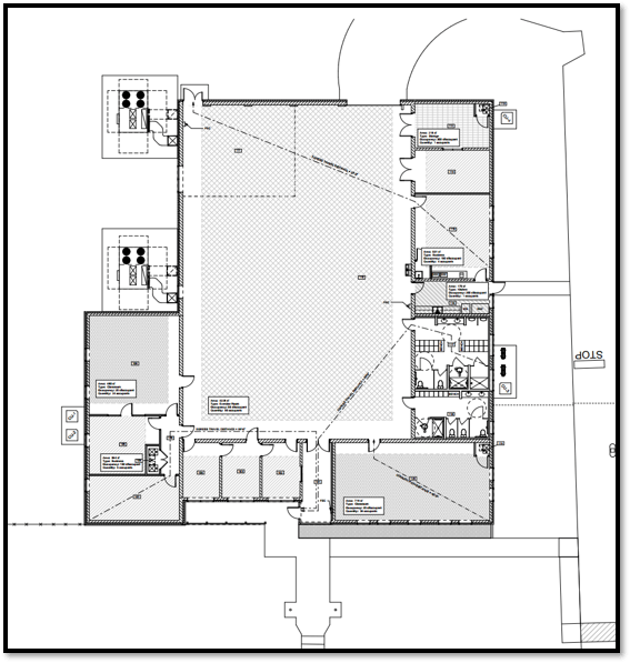
A safer Tyler starts with well-trained officers ready for anything. That is why we are transforming the former National Guard Armory on East Commerce Street into a cutting-edge Regional Police Training Facility, with renovations by Watson Commercial Construction expected to be complete by late October or early November. This $1.8 million investment is funded through the Half Cent Sales Tax Fund and is not just about law enforcement; it is about protecting all of Tyler, ensuring faster emergency response times, and making sure our police officers have the best training and tools to serve our community.

The Tyler Police Department is already one of the best in the country, holding a CALEA Accreditation, an elite distinction achieved by only 3 percent of law enforcement agencies nationwide. With this new facility, we are taking training to the next level. Six supervisors and officers will oversee the facility and training operations, including the police academy. Instead of officers traveling between multiple locations, they will have classrooms, locker rooms, a gym, and specialized training areas all in one place. This means they can sharpen their skills more efficiently and return to serving our community faster.

However, the impact of this facility goes beyond City limits. The Tyler Police Department already hosts statewide training sessions, drawing attendees across Texas and other states. With the new facility, our department is expanding its role as a regional training provider, offering high-quality instruction and resources to agencies across East Texas.

This investment is about making Tyler a place where families feel safe, businesses can thrive, and visitors can enjoy everything our city has to offer. When we invest in training, technology, and community-focused policing, we are investing in a future where safety is not just a goal, but a guarantee.

If you have questions about the TPD Regional Training Facility, be sure to ask them below!

A safer Tyler starts with well-trained officers ready for anything. That is why we are transforming the former National Guard Armory on East Commerce Street into a cutting-edge Regional Police Training Facility, with renovations by Watson Commercial Construction expected to be complete by late October or early November. This $1.8 million investment is funded through the Half Cent Sales Tax Fund and is not just about law enforcement; it is about protecting all of Tyler, ensuring faster emergency response times, and making sure our police officers have the best training and tools to serve our community.

The Tyler Police Department is already one of the best in the country, holding a CALEA Accreditation, an elite distinction achieved by only 3 percent of law enforcement agencies nationwide. With this new facility, we are taking training to the next level. Six supervisors and officers will oversee the facility and training operations, including the police academy. Instead of officers traveling between multiple locations, they will have classrooms, locker rooms, a gym, and specialized training areas all in one place. This means they can sharpen their skills more efficiently and return to serving our community faster.

However, the impact of this facility goes beyond City limits. The Tyler Police Department already hosts statewide training sessions, drawing attendees across Texas and other states. With the new facility, our department is expanding its role as a regional training provider, offering high-quality instruction and resources to agencies across East Texas.

This investment is about making Tyler a place where families feel safe, businesses can thrive, and visitors can enjoy everything our city has to offer. When we invest in training, technology, and community-focused policing, we are investing in a future where safety is not just a goal, but a guarantee.

If you have questions about the TPD Regional Training Facility, be sure to ask them below!

Ask a Question

Do you have questions about the Tyler Police Department Regional Training Facility? Ask them here to get a response from a project team member.


Email
loader image
Didn't receive confirmation?
Seems like you are already registered, please provide the password. Forgot your password? Create a new one now.
Page last updated: 09 Oct 2025, 03:02 PM